Price From £240,000 New Instruction

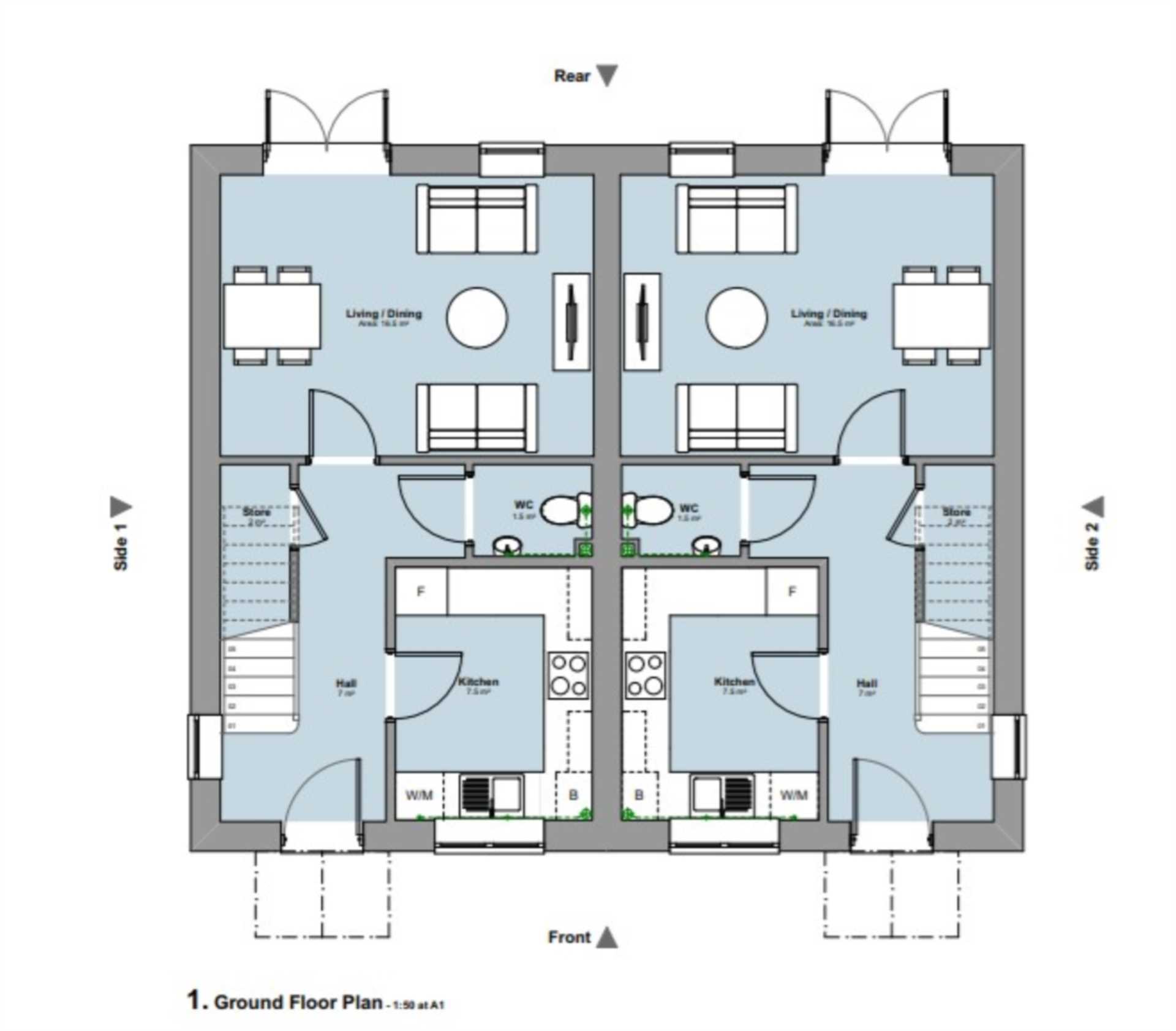
A beautifully presented 2 bedroom family home in a popular area of Wellingborough, this well presented property comprises of a kitchen, lounge/diner with doors direct into rear garden. Cloakroom/WC on the ground floor.

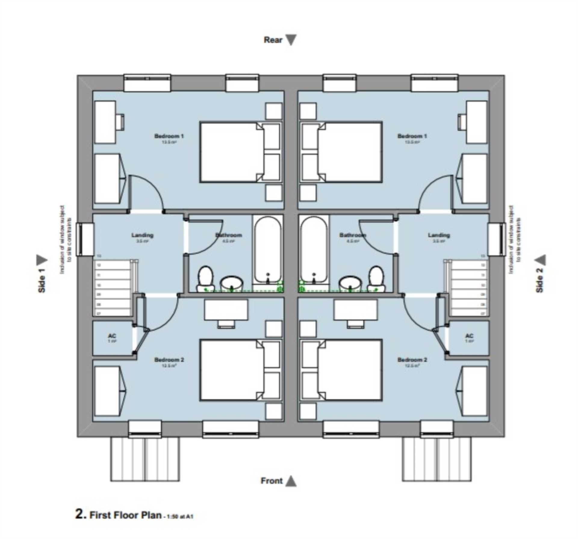
To the first floor are two double bedrooms and family bathroom. Outside is a well maintained rear garden. Property comes with of road parking for 2 cars, double glazed windows and gas radiator heating.
Minimum of 25% share available

*Example of costs based on a 25% share
Full Market Value - £240,000
25% Share Value - £60,000
Rent - £377.55 pcm
Insurance - £35.24 pcm

* Figures quoted are subject to change following a RICS valuation and could go up or down. All shared ownership must have a valid valuation within 3 months of completion.



Council Tax
North Northants Council, Band B

Lease Length
119 Years

Notice
Please note we have not tested any apparatus, fixtures, fittings, or services. Interested parties must undertake their own investigation into the working order of these items. All measurements are approximate and photographs provided for guidance only.

EER Chart

The Energy-Efficiency Rating is a measure of a home's overall efficiency. The higher the rating, the more energy-efficient the home is, and the lower the fuel bills are likely to be.

Utility Supply Type
Electric Mains Supply
Gas Mains Supply
Water Mains Supply
Sewerage None
Broadband None
Telephone None

Other Items Description
Heating Gas Central Heating
Garden/Outside Space Yes
Parking Yes
Garage No

Broadband Coverage Highest Available Download Speed Highest Available Upload Speed
Standard 16 Mbps 1 Mbps
Superfast 75 Mbps 20 Mbps
Ultrafast 1800 Mbps 1000 Mbps

Mobile Coverage Indoor Voice Indoor Data Outdoor Voice Outdoor Data
EE Enhanced Enhanced Enhanced Enhanced
Three Enhanced Enhanced Enhanced Enhanced
O2 Likely Likely Enhanced Enhanced
Vodafone Likely Likely Enhanced Enhanced

Broadband and Mobile coverage information supplied by Ofcom.


marker icon