Plot 499- Anticipated Completion June 2026
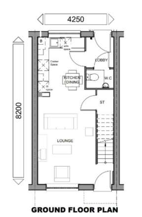
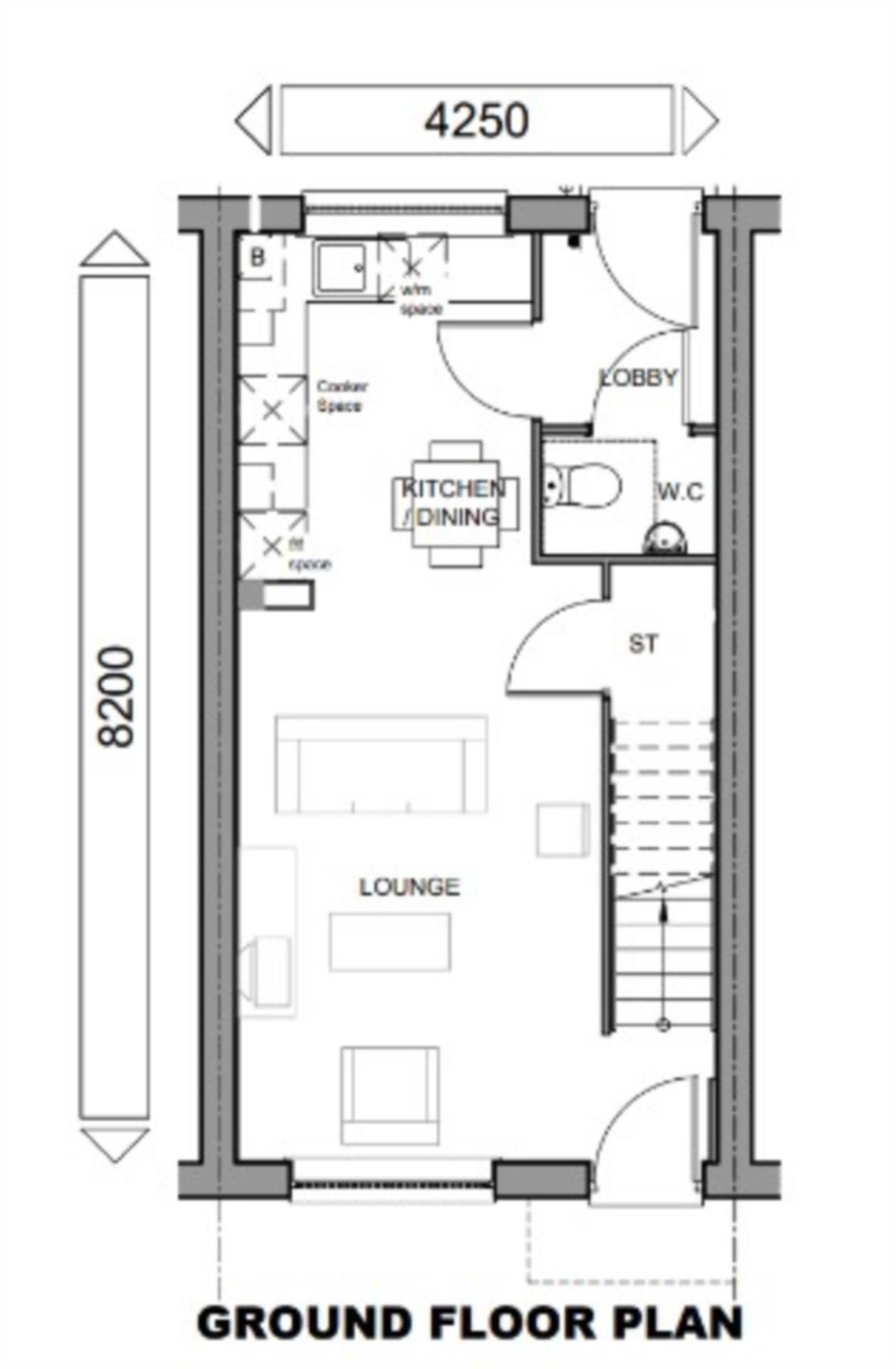
Ground floor comprises of Open plan Kitchen/Diner/Lounge with under-stairs store, Rear Lobby and downstairs WC. Kitchen comes with built in oven and hob. First floor comprises of Landing, 2 double bedrooms, family bathroom.
Enclosed Rear Garden with shed and parking for 2 cars
Example based on 25% share Figures are given as a guide only. The share purchase percentage is determined based on affordability criteria.
£210,000 Full Market Value
£52,500 25% Share
£360.94 Monthly Rental Approx.
£21.60 Estate Charge Approx
£35.00 Building Insurance Charge Approx
Council Tax
North Northants Council, Band B
Notice
Please note we have not tested any apparatus, fixtures, fittings, or services. Interested parties must undertake their own investigation into the working order of these items. All measurements are approximate and photographs provided for guidance only.
| Utility |
Supply Type |
| Electric |
Unknown |
| Gas |
Unknown |
| Water |
Unknown |
| Sewerage |
Unknown |
| Broadband |
Unknown |
| Telephone |
Unknown |
| Other Items |
Description |
| Heating |
Gas Central Heating |
| Garden/Outside Space |
No |
| Parking |
Yes |
| Garage |
No |
| Broadband Coverage |
Highest Available Download Speed |
Highest Available Upload Speed |
| Standard |
Unknown |
Unknown |
| Superfast |
Unknown |
Unknown |
| Ultrafast |
Unknown |
Unknown |
| Mobile Coverage |
Indoor Voice |
Indoor Data |
Outdoor Voice |
Outdoor Data |
| EE |
Unknown |
Unknown |
Unknown |
Unknown |
| Three |
Unknown |
Unknown |
Unknown |
Unknown |
| O2 |
Unknown |
Unknown |
Unknown |
Unknown |
| Vodafone |
Unknown |
Unknown |
Unknown |
Unknown |
Broadband and Mobile coverage information supplied by Ofcom.