Price £238,000 Under Offer

Plot 486 - Anticipated Completion April 2026

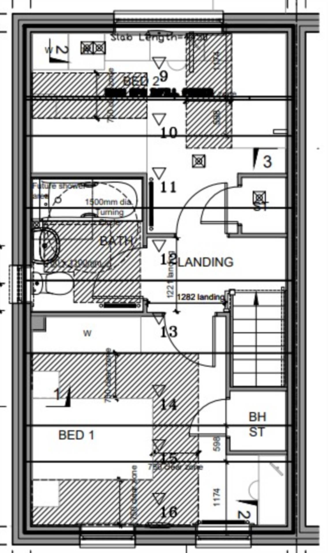
Ground floor comprises of Open plan Kitchen/Diner/Lounge with under-stairs store, Rear Lobby and downstairs WC. Kitchen comes with built in oven and hob. First floor comprises of Landing, 2 double bedrooms, family bathroom.
Enclosed Rear Garden with shed and parking for 2 cars

Example based on 25% share Figures are given as a guide only. The share purchase percentage is determined based on affordability criteria.

£238,000 Full Market Value
£59,500 25% Share
£409.06 Monthly Rental Approx.
£21.60 Estate Charge Approx
£20.00 Building Insurance Charge Approx



Council Tax
North Northants Council, Band B

Lease Length
990 Years

Notice
Please note we have not tested any apparatus, fixtures, fittings, or services. Interested parties must undertake their own investigation into the working order of these items. All measurements are approximate and photographs provided for guidance only.


/// chill.finely.wacky is the what3words address for the best entrance. what3words has given every 3 metre square in the world a unique combination of 3 random words.

EER Chart

The Energy-Efficiency Rating is a measure of a home's overall efficiency. The higher the rating, the more energy-efficient the home is, and the lower the fuel bills are likely to be.

Utility Supply Type
Electric Unknown
Gas Unknown
Water Unknown
Sewerage Unknown
Broadband Unknown
Telephone Unknown

Other Items Description
Heating Not Specified
Garden/Outside Space Yes
Parking Yes
Garage No

Broadband Coverage Highest Available Download Speed Highest Available Upload Speed
Standard Unknown Unknown
Superfast Unknown Unknown
Ultrafast Unknown Unknown

Mobile Coverage Indoor Voice Indoor Data Outdoor Voice Outdoor Data
EE Unknown Unknown Unknown Unknown
Three Unknown Unknown Unknown Unknown
O2 Unknown Unknown Unknown Unknown
Vodafone Unknown Unknown Unknown Unknown

Broadband and Mobile coverage information supplied by Ofcom.


marker icon