Price £275,000 Sold
  • 3 bed semi detached property
  • Built in cooker and hob
  • Shared Ownership

Plot 322 - Anticipated Completion June 2025

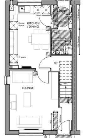
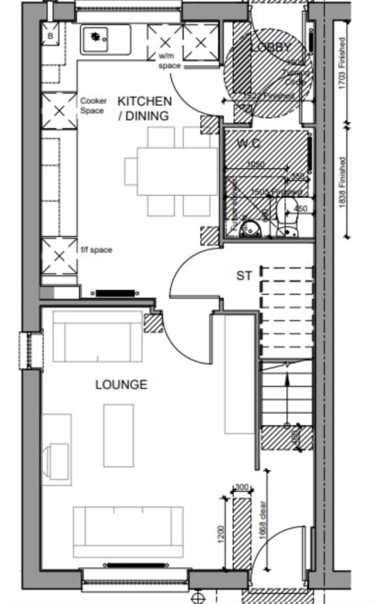
Ground floor comprises of Entrance Hall, Cloakroom, Lounge, Kitchen/Diner. Kitchen comes with built in oven and hob.
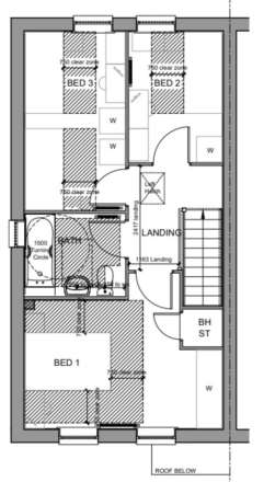
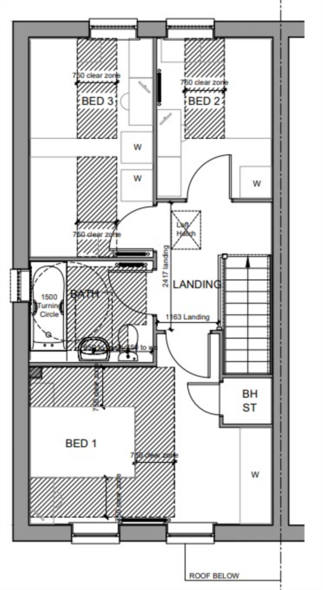
First floor comprises of Landing, 3 bedrooms, family bathroom.

Example based on 25% share Figures are given as a guide only.

Example based on 25% share
£275,000 Full Market Value
£68,750 25% Share
£472.66 Monthly Rental Approx.
21.60 Estate/Service Charge Approx
TBC Insurance Charge



Council Tax
North Northants Council, Band C

Lease Length
990 Years

Notice
Please note we have not tested any apparatus, fixtures, fittings, or services. Interested parties must undertake their own investigation into the working order of these items. All measurements are approximate and photographs provided for guidance only.

EER Chart

The Energy-Efficiency Rating is a measure of a home's overall efficiency. The higher the rating, the more energy-efficient the home is, and the lower the fuel bills are likely to be.

Utility Supply Type
Electric Mains Supply
Gas Mains Supply
Water Mains Supply
Sewerage Mains Supply
Broadband Unknown
Telephone Unknown

Other Items Description
Heating Not Specified
Garden/Outside Space No
Parking Yes
Garage No

Broadband Coverage Highest Available Download Speed Highest Available Upload Speed
Standard 29 Mbps 5 Mbps
Superfast Not Available Not Available
Ultrafast 1800 Mbps 1000 Mbps

Mobile Coverage Indoor Voice Indoor Data Outdoor Voice Outdoor Data
EE Likely Likely Enhanced Enhanced
Three Likely Likely Enhanced Enhanced
O2 Enhanced Likely Enhanced Enhanced
Vodafone Enhanced Enhanced Enhanced Enhanced

Broadband and Mobile coverage information supplied by Ofcom.


marker icon