Price £749 pcm New Instruction

Price £749 pcm - Available 15/12/2025 - Unfurnished


2 bed home available on Rentplus scheme which offers aspirational home owners an affordable opportunity to purchase their own home through a combination of affordable rents and a 10% gifted deposit. Rent. Save. Own.

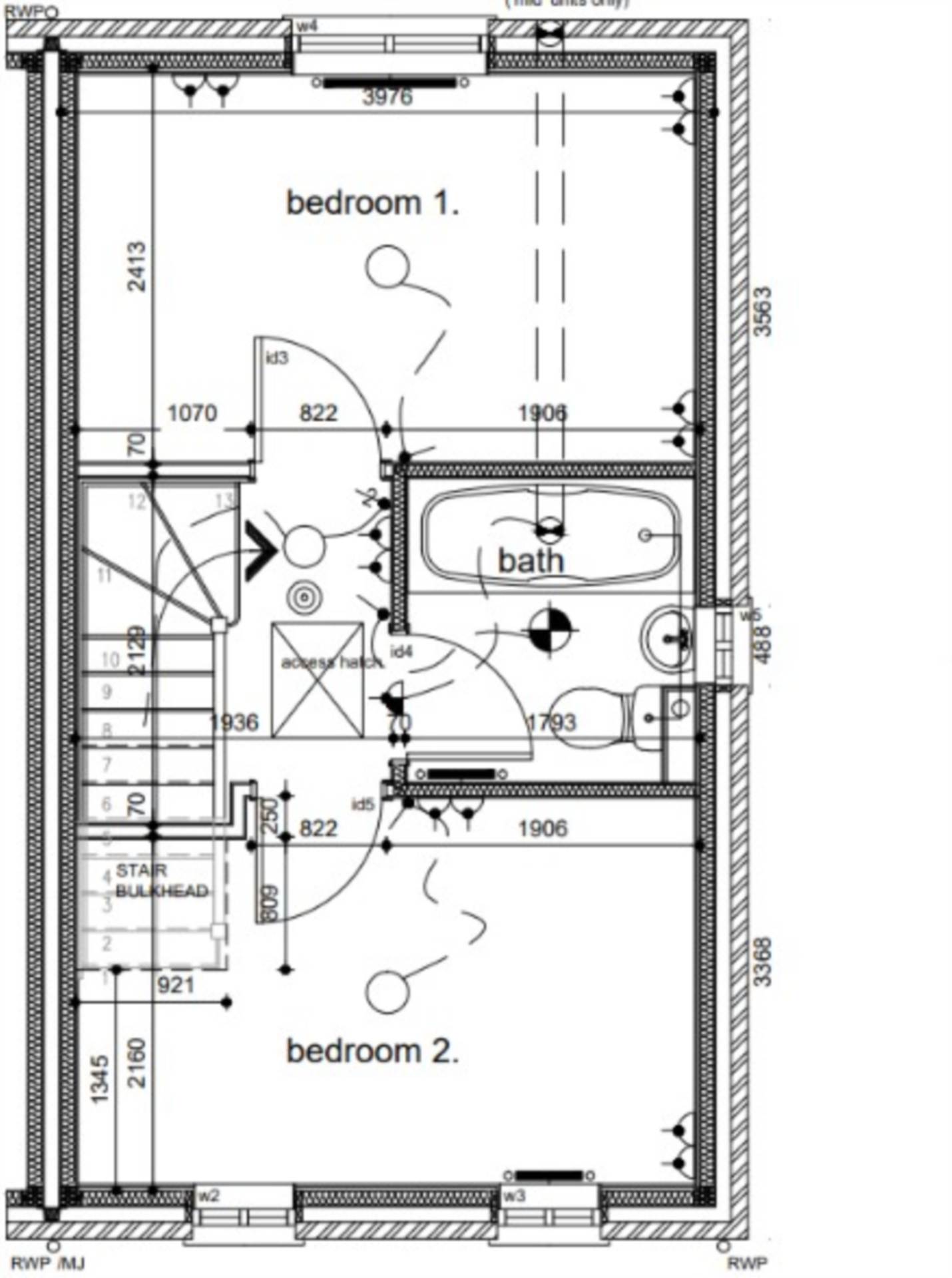
Features include kitchen, lounge, private garden and WC on the ground floor, 2 bedrooms and bathroom on the first floor with shower over bath.

What is Rentplus?
Rentplus is new type of affordable housing aimed at people who aspire to home ownership. Each Rentplus property will be on the scheme for an agreed period of between 5 and 20 years. When your property reaches the end of the agreed period you will be given the opportunity to buy your home. Rentplus will also give you a deposit of 10% of the value of your home as a gifted deposit to add to your own savings. Initially, you will be given a five year tenancy, and this will be renewed every five years until the property reaches the end of the agreed period.

This property is a re-let and the lease is due to end in April 2038. You will need to be in a position to purchase this property at the end of the lease

What is the Criteria?

Applicants will need to meet the following criteria
• This property is a relet so you must be ready to purchase in approx 12 years
• You must be working
• You must have enough income to pay for your rent and bills whilst saving for a deposit
• You will need to be able to get a mortgage at the end of the term
• Minimum household of 2 persons, maximum 4 persons
• Have lived in the local area for at least 3 of the last 5 years
• Have a permanent job in the local area for more than 16 hours per week (for at least 3 months)
• Have a good credit history
• Meet the Right to Rent criteria

Please Register your interest now. Closing dates for completed applications and supporting evidence Friday 21st November 2025



Deposit: £748.65

Council Tax
North Northants Council, Band B

Notice
All photographs are provided for guidance only.

The following are permitted payments which we may request from you:

a) The rent
b) Service Charges
f) Payments in respect of utilities, communication services, TV licence

Please call us if you wish to discuss this further.
EER Chart

The Energy-Efficiency Rating is a measure of a home's overall efficiency. The higher the rating, the more energy-efficient the home is, and the lower the fuel bills are likely to be.

EIR Chart

The Environmental Impact Rating is a measure of a home's impact on the environment in terms of carbon dioxide (C02) emissions - the higher the rating, the less impact it has on the environment.

Utility Supply Type
Electric Mains Supply
Gas None
Water Mains Supply
Sewerage None
Broadband None
Telephone None

Other Items Description
Heating Not Specified
Garden/Outside Space No
Parking No
Garage No

Broadband Coverage Highest Available Download Speed Highest Available Upload Speed
Standard 9 Mbps 0.9 Mbps
Superfast 77 Mbps 20 Mbps
Ultrafast 1800 Mbps 1000 Mbps

Mobile Coverage Indoor Voice Indoor Data Outdoor Voice Outdoor Data
EE Likely Likely Enhanced Enhanced
Three Likely Likely Enhanced Enhanced
O2 Enhanced Likely Enhanced Enhanced
Vodafone Likely Likely Enhanced Enhanced

Broadband and Mobile coverage information supplied by Ofcom.


marker icon